Back to Search Results

2 Bedroom Apartment to Rent in Westcott Road, London, SE17

£2,225 PCM Leasehold

Your Details

Your Friends Details

Summary

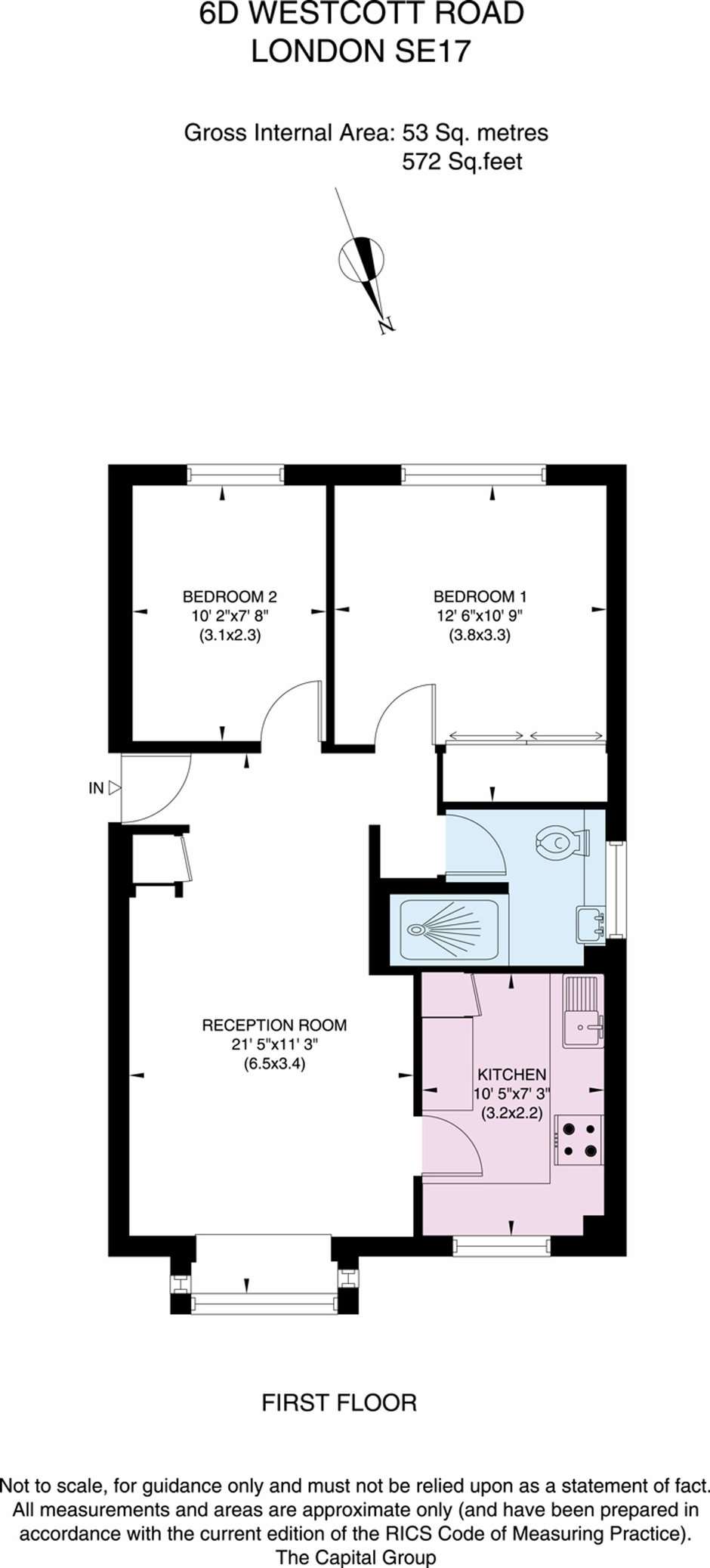
2 Bedrooms 1 Bathroom 1 Reception
  • Two Double Bedrooms
  • Separate Kitchen
  • Off-Street Parking
  • Close to Kennington Park
  • Close to Kennington Tube
  • Leasehold

Description

A cosy two double bedroom first floor apartment, with residents off-street parking, located close to Kennington Underground (Northern Line).

Introducing this charming, cosy fully furnished two-bedroom apartment situated in a prime location close to Kennington Park and Kennington Tube. This property features off-street parking, ensuring a hassle-free experience for residents with vehicles.

Located on a quiet street, the proximity to Kennington Park offers a calm retreat from the hustle and bustle of city life, ideal for leisurely strolls or picnics on sunny days. Additionally, the convenience of nearby Kennington Tube station provides easy access to the rest of London, making commuting a breeze.

Don't miss the opportunity to make this delightful apartment your new home. Contact us today to arrange a viewing and experience the charm and comfort this property has to offer.